logo
房子图标 首页 >资讯中心 >szs锅炉是几回程?

szs锅炉是几回程?

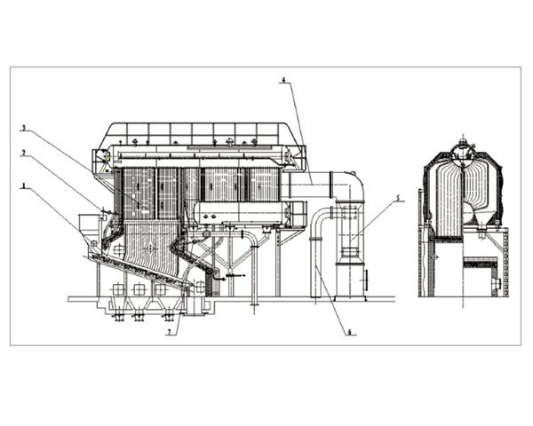
szs锅炉是几回程?对于szs锅炉目前是有两回程和三回程的区别的。回程可以简单的理解为烟气在锅炉内流通转弯的次数。

锅炉的烟气返回加热管在炉前从前面到炉,然后在炉前加热表面的加热管在炉中,然后在炉后加热表面在前面的受热面直到炉烟被引入炉内。

相关产品